公元 月 农历 年 [ 年 ]

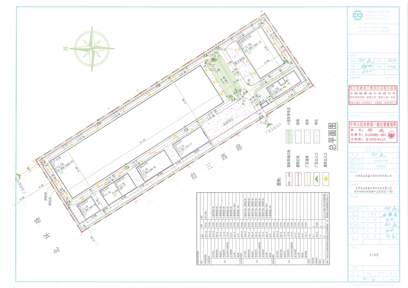
甘肃恒垚通鑫半导体材料有限公司碳中和新材料高新产业园项目(一期)

来源:工程规划审批科日期:2024-06-18


联系我们 | 关于我们 | 版权申明 | 网站地图

版权所有:中共张掖市委 张掖市人民政府 陇ICP备13000766号-2

甘公网安备 62070202000150号 网络视听许可证2811617号 网站标识码 6207000021