公元 月 农历 年 [ 年 ]

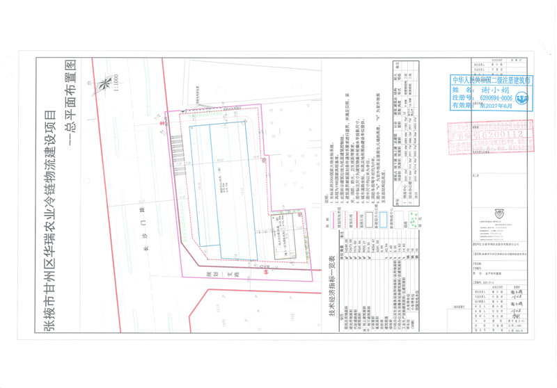
甘肃华瑞农业股份有限公司张掖市甘州区华瑞农业冷链物流建设项目建设工程规划许可证

来源:工程审批科日期:2025-09-25


联系我们 | 关于我们 | 版权申明 | 网站地图

版权所有:中共张掖市委 张掖市人民政府 陇ICP备13000766号-2

甘公网安备 62070202000150号 网络视听许可证2811617号 网站标识码 6207000021